
Jägerhof Quartier – Ludwigsburg
2018 – 2025
Bauherr: Wohnungsbau Ludwigsburg GmbH
1.Preis Realisierungswettbewerb
Planung / Realisierung, LP1-9 (LP 8 und 9 Teilleistungen "GU")
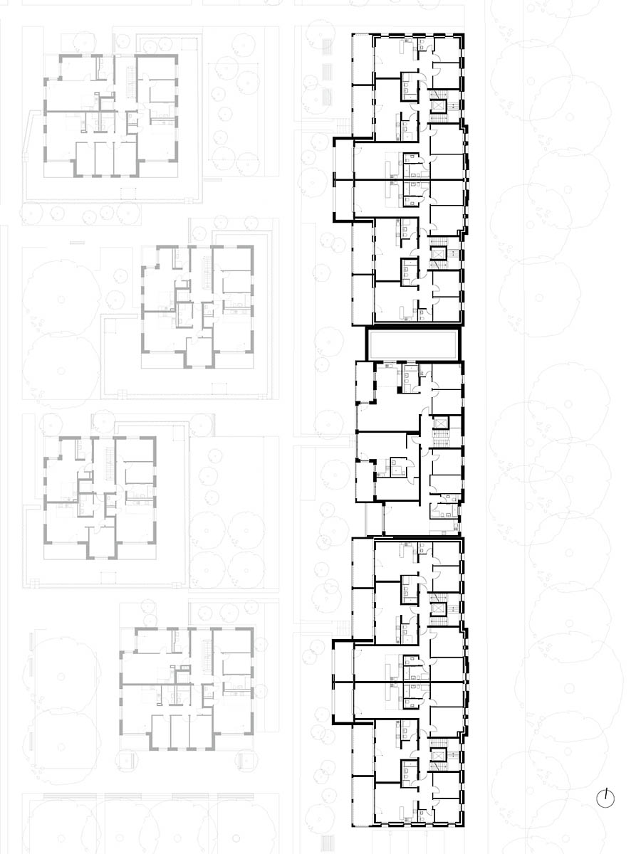
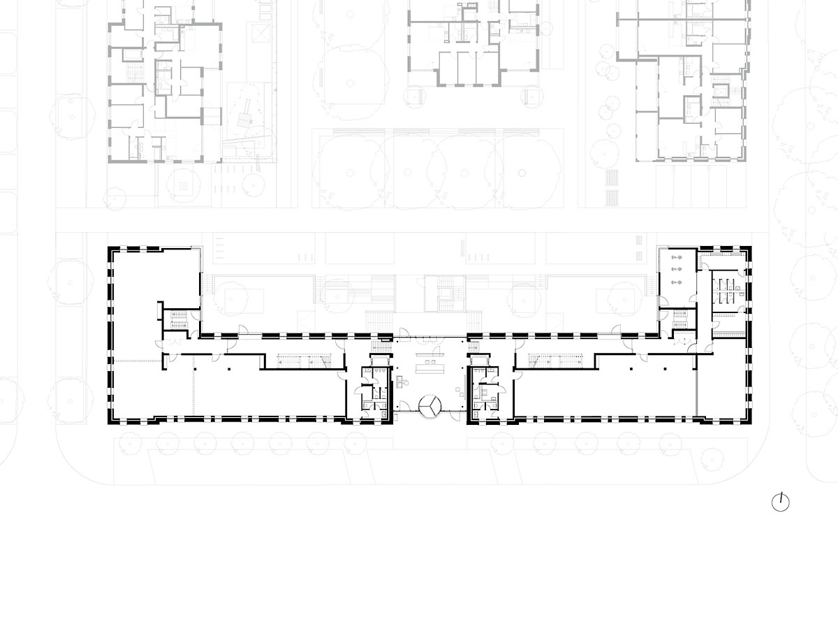
Sanierung und Umbau im Bestand | Neubau | 161 Wohneinheiten | KITA | ca. 3.900m² Büro-/ Gewerbeflächen
Auszeichnung Beispielhaftes Bauen, Landkreis Ludwigsburg 2025
Konversion der ehemaligen Jägerhofkaserne zu einem neuen Stadtquartier mit 161 Wohneinheiten in unterschiedlicher Größe, einer 4-gruppigen KITA, ca. 3.900m² Büro-, bzw. Gewerbeflächen und einer gemeinschaftlichen Tiefgarage. Ansatz einer Sichtbarwerdung und Visualisierung historischer baulicher Entwicklungen, Schichtungen und Texturen. Im geschichtlichen Kontext werden diese Phasen herausgearbeitet, weiterentwickelt und ergänzt. Historische Identität steht im Spanungsfeld von Bestandsstrukturen und Neubauten. Erlebbar geschichtliche Prozesse werden fortgeführt und mit der Neuordnung, Umstrukturierung von Alt und Neu zu einem Ganzen stimmig zusammengeführt.
Hier geht’s zur Prämierung der Architektenkammer Baden-Württemberg > AKBW / Baukultur / Beispielhaftes Bauen






















