
Unterbringung für Geflüchtete – Rottenburg am Neckar
2023 – 2025
Bauherr: Stadt Rottenburg am Neckar
Mehrfachbeauftragung, Planung / Realisierung LP1-8
Neubau am Neckar | 11 Wohneinheiten | Kinderspielplatz | Gemeinschaftsfläche | Optimierter Flächenverbrauch | Zukunftsorientiertes Nutzungskonzept | Erhaltener Baumbestand | Holztragwerk mit „Holz von Hier“
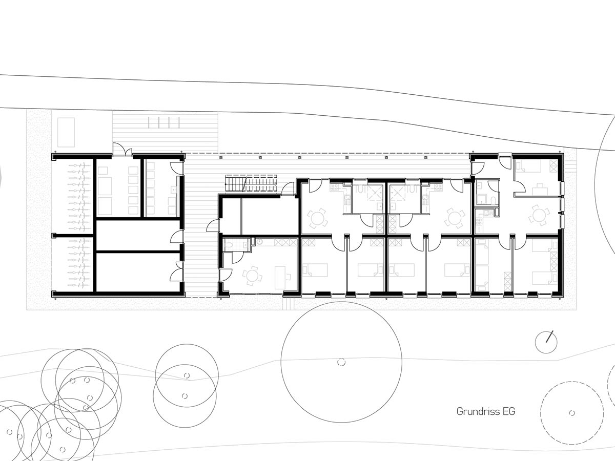
Im Zuge einer Mehrfachbeauftragung war es der Wunsch der Stadt Rottenburg am Neckar, das Angebot von Unterbringungen für Geflüchtete qualitativ und quantitativ zu verbessern. Das Baugrundstück liegt südlich, direkt an den Neckar angrenzend, am Rande des Gewerbegebiets Siebenlinden in Rottenburg am Neckar, gut angebunden an die Innenstadt, die mit dem Fahrrad in 5 Minuten zu erreichen ist. Die drei Bestandsgebäude, in denen Obdachlose untergebracht waren, sollen aufgrund ihrer schlechten Bausubstanz abgebrochen werden.
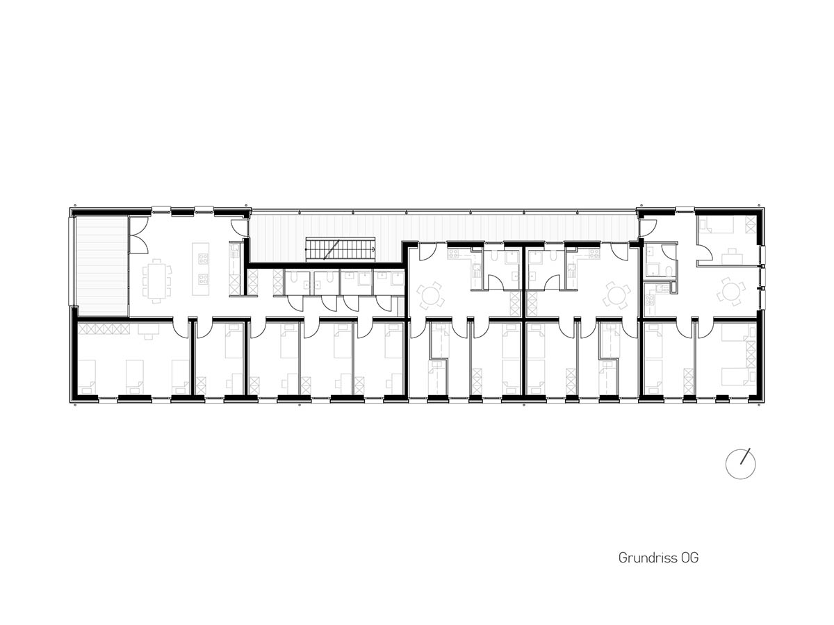
Mit dem ersten Bauabschnitt entstand ein reduzierter, kompakter, dreigeschossiger, längsorientierter und gut proportionierter Baukörper in Holzrahmenbauweise mit flachem Satteldach, das nahezu vollflächig mit PV-Paneelen belegt ist. Eine Luft-Wärme-Pumpe, die bereits für alle drei Bauabschnitte ausgelegt und entsprechend im Aussenraum positioniert wurde, liefert die erforderliche Wärmeenergie für das Gebäude. Die insgesamt 11 Wohneinheiten werden von der Siebenlindenstraße im Norden über offene Laubengänge erschlossen. Zusammen mit der hellen, freundlichen Farbgebung entsteht ein eigenständiger, einladender Charakter mit möglichen Treffpunkten der Bewohnerinnen und Bewohner sowie Durchblicken zum Neckar. Auf der Südseite konnten die ortsbildprägende, stark bewachsene Böschung am Neckar und der alte Baumbestand erhalten werden. Unter einer der großen Linden wurde der Kinderspielplatz platziert.
Für unterschiedlichste Konstellationen, Wohnformen und Lebensentwürfe geplant, wurden die kompakten südorientierten Wohneinheiten in ihrem Flächenverbrauch unter anderem durch die gemeinschaftlich genutzten Bereiche wie Wohnküchen, Bäder, Loggien sowie Wasch- und Trockenraum optimiert. Eine Nutzung wie aktuell durch Geflüchtete wäre zukünftig, aufgrund der vielfältigen Wohnformen, genauso für Auszubildende, Studierende etc. möglich.
Der Ausbaustandard im Innenbereich ist schlicht, funktional aber robust und langlebig gewählt. Sichtbare Holzdecken, eine durchgängige Bodenbeschichtung mit geringem Fugenanteil und Holzständerwände mit OSB- oder GK-Platten charakterisieren den wohnlichen Innenraum. Durch die bodentiefen Fensterelemente sind die Räume, Wohnungen lichtdurchflutet und erfüllen mit den aussenliegenden Raffstores den sommerlichen Wärmeschutz.













