
Wohnquartier Schelmenäcker – Leinfelden Echterdingen
2020 – 2025
Bauherr: Siedlungswerk Stuttgart
1. Preis Wettbewerb nach Überarbeitung (Investoren- und Planungswettbewerb), Planung / Realisierung LP1-5, Oberbauleitung LP8
Neubau Wohnquartier | 7 Mehrfamilienhäuser | 143 Wohneinheiten | 12 Büro-/ Gewerbeflächen | Tiefgarage | Stadtlandschaft
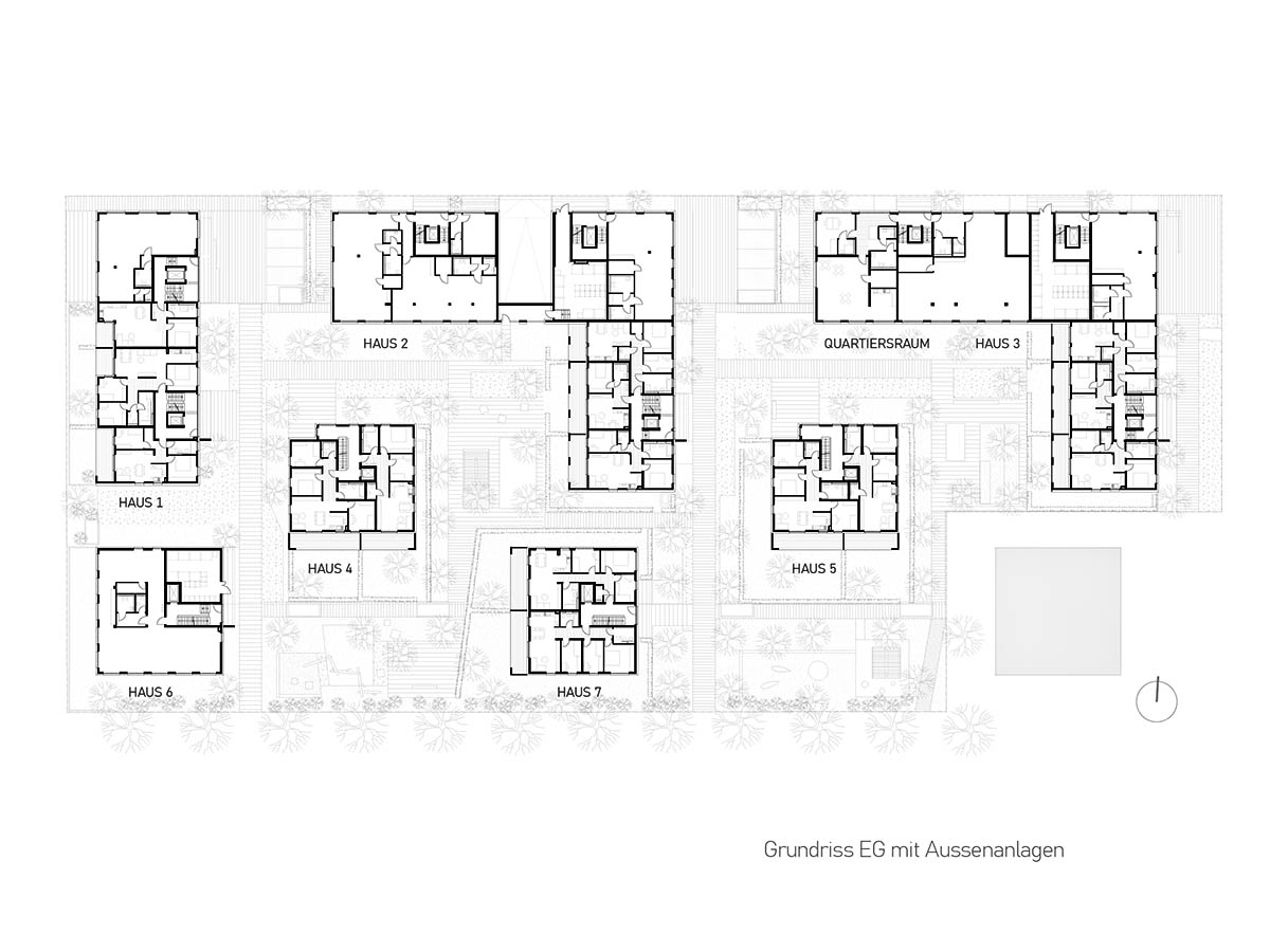
Städtebauliche Idee
Mit der städtebaulichen Entwicklung der Schelmenäcker entsteht ein lebendiges Wohnquartier für alle Bevölkerungskreise. Auftakt ist eine klare Raumkante zur Max-Lang-Straße bzw. zum nördlich angrenzenden Gewerbegebiet. Nach Süden zu den bestehenden Streuobstwiesen und dem Landschaftsraum wird eine Bebauungsstruktur formuliert, die die einzelnen Baufelder mit dem Freiraum verzahnt.
Von dem neuen Quartiersplatz an der U5-Haltestelle mit Jugendzentrum und Kindertagesstätte entsteht entlang der Max-Lang-Straße eine Abfolge von kleinen Platzsituationen, die in die neuen Wohnviertel einleiten. Sie bilden als Nachbarschaftshöfe jeweils die Mitte der umgebenden Gebäudeensembles.
Die IV- bis VI-geschossige winkelförmige Bebauung im Norden schafft den raumbildenden Rücken zum heterogenen Gewerbebestand und gewährleistet den gewünschten Lärmschutz für die nach Süden und Südwesten ausgerichteten Wohnsituationen. Innerhalb der neuen Wohnviertel verzahnen sich die punktförmigen Solitärgebäude über grüne Freiflächen mit den Themen Kinderspiel, Spielen und Toben, sowie Lernorte für Jung und Alt mit den angrenzenden Streuobstwiesen.
Im Zusammenspiel mit „Höfen“ und „Freiflächen“ entstehen klar zonierte hochwertige private, halböffentliche und öffentliche Aufenthaltsräume vernetzt durch erlebbare Wegebeziehungen.
Architektonisches Konzept
Durch die versetzt angeordneten Baukörperstellungen und -orientierungen entstehen durchgängig sehr gut belichtete Wohnsituationen. Selbst in den winkelförmigen Bebauungen mit „Fuge“ werden im Bereich der Wohnungen in den Obergeschossen durch baukörperliche Differenzierung ebenfalls gute Belichtungssituationen geschaffen. Die geplanten Gewerbe- und Dienstleistungsbereiche erhalten, direkt erschlossen von Norden, Adressen zur Max-Lang-Straße und finden im nordöstlichen Bereich des Baufeldes III einen Nutzungsschwerpunkt.
Neben sorgfältig durchgearbeiteten Grundrissideen (durchwohnen, Blickbeziehungen ins Grüne bzw. zu den „Höfen“) sind bei unterschiedlicher Witterung gut nutzbare Freibereiche von größter Bedeutung für individuelle Wohnqualität. Alle Wohnungen erhalten einen Gartenanteil oder eine vorgelagerte Loggia bzw. Balkonsituation und in den obersten Geschossen Dachterrassen. Bei den solitären Punkthäusern unterstreichen großzügig vorgelagerte Loggienbereiche nach Süden bzw. Westen den architektonischen Ausdruck im Übergang von Landschaft zu gebauter Stadt.
Nutzungskonzept
Wohnen da wo andere wohnen ist die Leitidee für die Schaffung von sozial gemischten Quartieren und Nachbarschaften. Angestrebt wird ein Wohnen für Alle in einem lebendigen Wohnumfeld für junge und alte Menschen sowie inklusive Wohnorte in direkter Nachbarschaft. Geförderter Mietwohnungsbau, preisgedämpfte Miet- und Eigentumswohnungen, sowie freifinanzierter Wohnungsbau sind in ein Gesamtwohnkonzept eingebunden. Wohnungen für Alleinerziehende, Wohngruppen für Menschen mit Behinderungen ergänzen, arrondieren ein vielfältiges Wohnungsgemenge. Zum öffentlichen Raum, zu den adressbildenden Nachbarschaftshöfen orientieren sich Blick- und Wegebeziehungen, Aufenthaltsräume im Freien, die die Plätze einbeziehen und beleben.
Auftakt zum öffentlichen Parkbereich im Westen bildet eine Bäckerei / ein Café mit Innen- und Außenbewirtung. Mit einer Begegnungsstätte, der „Lichtstube“, entsteht ein Gelenk zwischen den Wohngruppen für Menschen mit Behinderung und ihren Nachbarschaften. Die besonderen Angebote für Alleinerziehende mit flexiblen Schalträumen und Wohngruppen bzw. Appartements für Menschen mit Handicap ergänzen die geplanten Wohntypologien.
Hier geht’s zum Projekt des IBA’27-Netz > Schelmenäcker: Wohnen für alle – Arbeiten im Grünen














